Bornheim
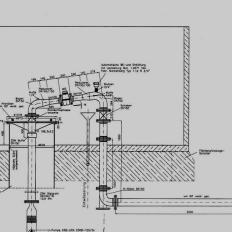
Im Rahmen eines Brunnenbauprojekts hat die BHG Brechtel GmbH das Brunnenhaus sowie die komplette Ausrüstung der Förderanlage (Pumpeinrichtung, Armaturen im Brunnenhaus, E-Technik) erstellt.
Die Rohrdimension der Armaturen und Einbauteile ist DN 150.



